- Inicio
- Productos
- Estanterías
- Estantería (cara doble)
Estantería (cara doble)
-
- Modelo
- DSJ700
-
- Estándar
-
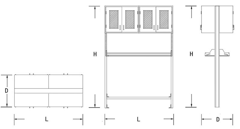
- Tamaño:
(L) 1500mm * (D) 700mm * (H) 2250mm - Materiales:
el bastidor se encuentra hecho de acero de 1.5mm de espesor, el cuerpo del gabinete suspendido se encuentra hecho de acero de alta calidad de 1.0mm de espesor, las manijas del bastidor tipo C se encuentran hechas de acero inoxidable SS304, los estantes se encuentran hechos de vidrio templado - Acabado: blanco
- No incluye: gabinetes bajos
- Tamaño:
-
- Opcional
-
- Puede fabricarse el bastidor con acero inoxidable
- Puede fabricarse el gabinete suspendido a partir de acero inoxidable o con paneles de PP o de melamina
- La puerta frontal del gabinete puede fabricarse a partir de acero sólido
- Manija fundida a presión
- Colores de pintura personalizados
- Se encuentra disponible el canal de tensión (SJC1330), se puede personalizar según las necesidades de cada cliente la cantidad de tomacorrientes.
Otros productos










